岩手のローコスト住宅ガイド「Low Cospa」 » 2,000万円以下でどんな家が建つ?岩手で建てられる間取り例 » 1,501万円~2,000万円のプラン例

1,501万円~2,000万円のプラン例

家づくりでできるだけ費用を抑えたい方におすすめのローコスト住宅。ただローコスト住宅を建てるとなると、どんな家になるのか心配に思う方も少なくはないはず。
ここでは、1,501万円~2,000万円のプランとその特徴についてみていきましょう。
2,000万円以内のマイホームを検討している方は、参考にしてみて下さい。

目次
目次

規格住宅でも、幅広いプランの選択が可能に!

ジョンソンホームズが手がけるローコスト住宅「COZY」。スタンダードプランの場合でも150種類以上の選択肢が設けられており、インテリアのテイストも4種類から選べます。

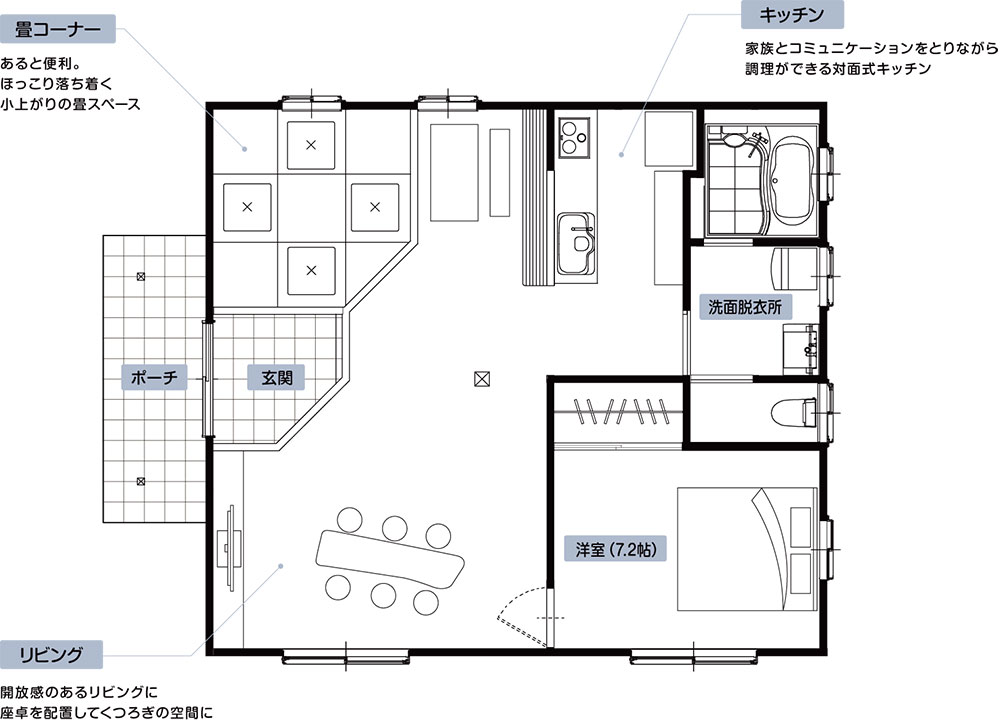
COZY「25A-S」プラン建物価格1,962万円〜

画像引用元:ジョンソンホームズ公式HP(https://fc.cozy-home.jp/iwate-kita/plan/488/)
COZY「25A-S」プランの外観

COZY「25A-S」プラン建物価格1,962万円〜

画像引用元:ジョンソンホームズ公式HP(https://fc.cozy-home.jp/iwate-kita/plan/488/)
COZY「25A-S」プランの1階間取り

COZY「25A-S」プラン建物価格1,962万円〜

画像引用元:ジョンソンホームズ公式HP(https://fc.cozy-home.jp/iwate-kita/plan/488/)
COZY「25A-S」プランの2階間取り

COZY「25 C-S」プラン建物価格1,960万円〜

画像引用元:ジョンソンホームズ公式HP(https://fc.cozy-home.jp/iwate-kita/plan/744/)
COZY「25 C-S」プランの外観

COZY「25 C-S」プラン建物価格1,960万円〜

画像引用元:ジョンソンホームズ公式HP(https://fc.cozy-home.jp/iwate-kita/plan/744/)
COZY「25 C-S」プランの1階間取り

COZY「25 C-S」プラン建物価格1,960万円〜

画像引用元:ジョンソンホームズ公式HP(https://fc.cozy-home.jp/iwate-kita/plan/744/)
COZY「25 C-S」プランの2階間取り

COZY「25F-S」プラン建物価格1,980万円〜

画像引用元:ジョンソンホームズ公式HP(https://fc.cozy-home.jp/iwate-kita/plan/794/)
COZY「25F-S」プランの外観

COZY「25F-S」プラン建物価格1,980万円〜

画像引用元:ジョンソンホームズ公式HP(https://fc.cozy-home.jp/iwate-kita/plan/794/)
COZY「25F-S」プランの1階間取り

COZY「25F-S」プラン建物価格1,980万円〜

画像引用元:ジョンソンホームズ公式HP(https://fc.cozy-home.jp/iwate-kita/plan/794/)
COZY「25F-S」プランの2階間取り

COZY「25A-S」プラン建物価格1,962万円〜
COZY「25A-S」プラン建物価格1,962万円〜
COZY「25A-S」プラン建物価格1,962万円〜
COZY「25 C-S」プラン建物価格1,960万円〜
COZY「25 C-S」プラン建物価格1,960万円〜
COZY「25 C-S」プラン建物価格1,960万円〜
COZY「25F-S」プラン建物価格1,980万円〜
COZY「25F-S」プラン建物価格1,980万円〜
COZY「25F-S」プラン建物価格1,980万円〜

北欧風、ブルックリン風、西海岸風、やさしい色合いでリネンのようなぬくもりが感じられるナチュラル風…など、様々な好みに対応しているため、デザインにこだわりたい方も納得しやすいでしょう。

ワンフロアの暮らしがコンセプト!高級感のある平屋を建てられる

ライフステージに合わせたこだわりの住宅を提供するジャストハウジング。「ワンフロアの暮らし」をコンセプトにした開放的な空間は、ローコストとは思えない高級感を醸し出しています。

家事ラク動線の平屋

画像引用元:ジャストハウジング公式HP(https://just-housing.com/hiraya/)
家事ラク動線の平屋の外観

家事ラク動線の平屋

画像引用元:ジャストハウジング公式HP(https://just-housing.com/hiraya/)
家事ラク動線の平屋の間取り

ワンフロアで家族が繋がる平屋

画像引用元:ジャストハウジング公式HP(https://just-housing.com/hiraya/)
ワンフロアで家族が繋がる平屋の外観

ワンフロアで家族が繋がる平屋

画像引用元:ジャストハウジング公式HP(https://just-housing.com/hiraya/)
ワンフロアで家族が繋がる平屋の間取り

家事ラク動線の平屋
家事ラク動線の平屋
ワンフロアで家族が繋がる平屋
ワンフロアで家族が繋がる平屋

平屋を基本としているのも特徴で、2,000万円以下の間取りであれば月々5万円前後のローンで購入可能ですから、家賃同様無理なく支払い計画が立てられそうです。

2,000万円台になると更に間取りの選択肢が広がる!

サトコンホームの平屋も、Sサイズ(15坪程度)から用意されているため、ローコストで無理なく購入が可能。LDKを中心としてすべての部屋が繋がる仕様となっており、家族間のコミュニケーションも取りやすそうです。

2LDK (ロフト有)平屋Sサイズ

画像引用元:サトコンホーム公式HP(http://www.satocon.com/lp/pirica/standard/)
2LDK (ロフト有)平屋Sサイズの間取り

2LDK (ロフト有) 平屋Mサイズ

画像引用元:サトコンホーム公式HP(http://www.satocon.com/lp/pirica/standard/)
2LDK (ロフト有) 平屋Mサイズの間取り

2LDK (ロフト有) 平屋Lサイズ

画像引用元:サトコンホーム公式HP(http://www.satocon.com/lp/pirica/standard/)
2LDK (ロフト有) 平屋Lサイズの間取り

2LDK (ロフト有)平屋Sサイズ
2LDK (ロフト有) 平屋Mサイズ
2LDK (ロフト有) 平屋Lサイズ

2,000万円台の場合、ワンランク上のプラン「PORO」であれば20畳近いLDKに家族分の部屋を付けられますから、間取りの自由度がかなり広がることが窺えます。

ロフトスタイルもおすすめ!伝統的なヒノキと真壁づくりの家

日本ならではの「ヒノキの家」にこだわり、伝統工法である真壁づくりを採用しているサイエンスホーム。平屋であれば1,700万円台から建築可能と、良心的な価格設定となっています。

サイエンスホーム平屋スタイル(1階建て)プランの間取り

画像引用元:サイエンスホーム公式HP(https://www.sciencehome.jp/model/)
サイエンスホーム平屋スタイル(1階建て)プランの間取り

ロフトスタイル(1.5階建て)プランの間取り

画像引用元:サイエンスホーム公式HP(https://www.sciencehome.jp/model/)
ロフトスタイル(1.5階建て)プランの間取り

サイエンスホーム平屋スタイル(1階建て)プランの間取り
ロフトスタイル(1.5階建て)プランの間取り

また、1,800万円台から1.5階建ての「ロフトスタイルの家」を建てられるのもポイント。吹き抜けを利用し、コンパクトでありながらダイナミックな空間を実現しているのが魅力です。

オール電化のZEH住宅も、この価格帯なら購入できる!

北海道や東北を中心として寒冷地の気候に合わせた家づくりを行っているロゴスホーム。岩手県に関しては東北限定モデル「GUUUS(グース)」を選べるのが特徴で、1,000万円台から太陽光パネルが標準装備された住まいを購入できます。

「GUUUS(グース)」の内観

画像引用元:ロゴスホーム公式HP(https://www.logoshome.jp/works/guuus/calm-natural/)
「GUUUS(グース)」の内観

「GUUUS(グース)」の外観

画像引用元:ロゴスホーム公式HP(https://www.logoshome.jp/works/guuus/calm-natural/)
「GUUUS(グース)」の外観

「GUUUS(グース)」の内観

画像引用元:ロゴスホーム公式HP(https://www.logoshome.jp/works/guuus/urban-like/)
「GUUUS(グース)」の内観

「GUUUS(グース)」の内観

画像引用元:ロゴスホーム公式HP(https://www.logoshome.jp/works/guuus/scandinavia/)
「GUUUS(グース)」の内観

「GUUUS(グース)」の内観
「GUUUS(グース)」の外観
「GUUUS(グース)」の内観
「GUUUS(グース)」の内観

オール電化も搭載されたZEH住宅なので、性能面にこだわりたい方におすすめだと言えるでしょう。間取りに関しても合計75平米前後を基本としており、ゆったりとした印象です。

1,501万円~2,000万円のプラン例をご紹介しましたが、いかがだったでしょうか?このサイトでは、「こんな家づくりをしたい!」からコストパフォーマンスの良いローコスト住宅を建築する岩手の住宅メーカーを紹介しています。安さだけではなく、自分たちのこだわりを形にしたいとお考えの方は、ぜひ参考にしてください。

こんな家づくりをしたい!
から見つける
岩手のローコスト住宅3選

高性能でコスパの良い
から見つける
岩手のローコスト住宅会社3選

岩手でマイホームづくりをするなら、できるだけ安くて品質の良い家づくりをしたいものです。

そこで公式HPで価格例、住宅メディアで施工実績を明記し、中間マージンの掛からない自社施工の住宅会社を集めてみました。寒冷地で施工実績がある会社は多くの人が品質面などを評価し、支持される会社でもある証。また、せっかく家づくりをするのですから、ローコスト住宅とはいえ、妥協はしたくないものです。

ここでは「友だちを呼べるオシャレな家に住みたい」「保証に手厚いところへお願いしたい」「とにかく予算内に収めたい」といったこだわりで、おすすめの住宅会社をご紹介していきます。

高性能×オシャレ
重視なら

ロゴスホーム
おすすめプラン:GUUUS
ロゴスホーム施工事例
画像引用元:ロゴスホーム公式HP
https://www.logoshome.jp/works/guuus/scandinavia/
参考価格
28.5坪 3LDK:
1,886万円(税込)~

北海道住宅着工数No.1
(2020年/北海道住宅通信社調べ)

約300の間取りプランから選べる他、モノトーン、ナチュラルモダン、スカンジナビア、ナチュラルなどデザインテーマに合わせた内装で友人を呼びたい家に。

高性能×長期保証
重視なら

イシカワ
おすすめプラン:良質住宅
イシカワ施工事例
画像引用元:イシカワ公式HP
https://www.kk-ishikawa.com/plan/12383/
参考価格
28坪4LDK:
1,811万円(税込)~

新潟県住宅着工棟数No.1
(2018年度/住宅産業研究所調べ)

創業73年安定経営基盤で最長60年の長期保証で世代を超えて住み継がれる家づくりが叶う。

※保証を受けるには条件が必要な場合がございます。詳しくはイシカワへお問い合わせください。

高性能×予算内
重視なら

ジャストハウジング
おすすめプラン:二階建ての家
ジャストハウジング施工事例
画像引用元:ジャストハウジング公式HP
https://just-housing.com/gallery/details_17.html
参考価格
約28坪プラン:
1,940万円(税込)

岩手県新築着工頭数No.1
(2018年度/住宅産業研究所調べ)

坪数、屋根、外観、内観のテイストを選ぶだけで費用が明確になる家づくり。決まったプランから選ぶので予算内で建てられ、検討時間も減る。

【選定基準】
2023年6月13日にGoogleMapで「ローコスト住宅 岩手」検索し、表示された34社の中から、公式サイトに価格例、住宅メディアに施工実績を記載、また自社施工をする3社のプランを以下の条件から選出。
GUUUS(ロゴスホーム)…選出した3社の中で唯一、約300種類の間取りプランが選べ、事例として内装のテイストを明記(https://www.logoshome.jp/tohoku/guuus/
ロゴスホーム施工実績…北海道住宅着工数No.1※(株式会社ロゴスホーム、豊栄建設株式会社の実績を合算)(2020年/北海道住宅通信社調べ)
※参照元:北海道住宅通信社「第734号(2021年3月10日)発行」https://juu-tsuu.net/juutsuu/entry?eid=14987
良質住宅(イシカワ)…選出した3社の中で唯一、最長60年の長期保証で家づくりができると明記(https://www.kk-ishikawa.com/housing/after/
イシカワ施工実績…新潟県住宅着工棟数No.1※(2018年度/住宅産業研究所調べ)
※参照元:JSK株式会社住宅産業研究所「約15年間でビルダーが台頭、変化した地域勢力図」https://www.tact-jsk.co.jp/archives/21477
二階建ての家(ジャストハウジング)…選出した3社の中で唯一、公式HPに4ステップで費用が明確になる家づくりができると明記(https://just-housing.com/housing/
シリウス(ジャストハウジング)施工実績…岩手県新築着工頭数No.1※(2018年度/住宅産業研究所調べ)
※参照元:JSK株式会社住宅産業研究所「約15年間でビルダーが台頭、変化した地域勢力図」https://www.tact-jsk.co.jp/archives/21477